
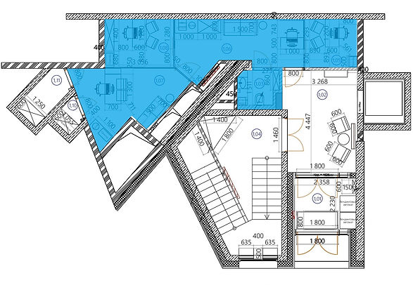
Офіс №1.05
Офіс планується здаватися під нотаріуса (нотаріальні послуги), оскільки є кімнати для облаштування архіву.
Просторий офіс з сучасним ремонтом, в офісі є:
-
розведена структурована кабельна мережа під робочі місця;
-
до кожного офісу заведена високошвидкісна оптоволоконна мережа яка забезпечує можливість підключення до провайдерів які надають доступ в Інтернет;
-
в офісі розведена сучасна система сигналізації, доступ до офісу забезпечує система IP домофонії з інтегрованою системою контролю доступу. Доступ до офісів, забезпечується за розпізнаванням обличчя, ідентифікації по телефону, картам, або брелкам;
-
також у кожному офісі передбачено ресепшн, кабінет для директора та невелика кухня;
-
опалення: централізоване від особистого теплового пункту;
-
вентиляція: поверхова, припливно – витяжна система вентиляції з рекуперацією;
-
кондиціонування: окрема для кожного офісу система канального кондиціонування;
-
система протипожежного захисту: автоматична сплінкерна система водяного пожежогасіння, автоматична система пожежної сигналізації, система оповіщення про пожежу.

.jpg)
План 1 поверху
Галерея
Залишити заявку!
НАША АДРЕСА
вул. Митрополита Василя Липківського,
буд. 16Г, м.Київ
Поруч з ТРЦ Ультрамарин та БЦ 101Tower, метро Вокзальна
Email: bcarowana@gmail.com
Телефон: +38 050 351 2175












